
DESCRIPTION DU PROJET 3 MAISONS NEUVES AU BOIS-PLAGE : Sur une parcelle ayant deux accès sur rue, le terrain est divisé en 3 lots. Deux maisons s’implantent sur les parcelles Nord et une maison plus conséquente s’implante sur la parcelle Sud en drapeau. Les maisons comportent toutes des patios, élément phare de l’île de Ré apportant un complément d’ensoleillement notamment le matin dans les pièces de vies. Les séjours ont une double orientation, et les suites parentales sont toujours orientées sur le jardin notamment sur la piscine pour le lot 3. Un travail de façade a été mené avec l’ajout de bardage et de bande noire en pied de mur pour animer les façades y compris dans les patios.
PROGRAMME :
Lot 1 : Entrée, buanderie, pièce de vie, une suite parentale, deux chambres enfants.
Lot 2 : Entrée, buanderie, pièce de vie, suite parentale, deux chambres enfants.
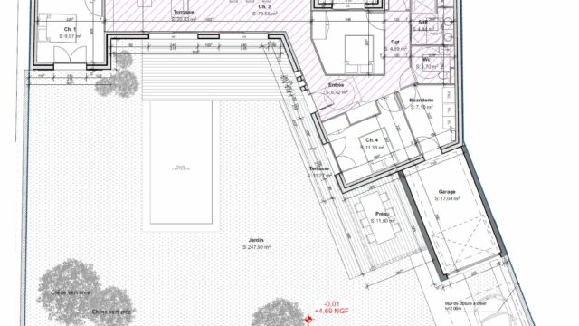
Lot 3 : Entrée, buanderie, garage, préau repas, pièce de vie, une suite parentale, 3 chambres enfants.
OBJET : Construction de 3 maisons individuelles au Bois-Plage
MAITRE D’OUVRAGE : Lotisseurs de l’Ouest
LIEU : 17580 Le Bois Plage
BUDGET : 500 000€TTC
ARCHITECTE : Agence Ré Team Design
MISSION : Permis de construire
DATE DE REALISATION : Etudes en cours








