
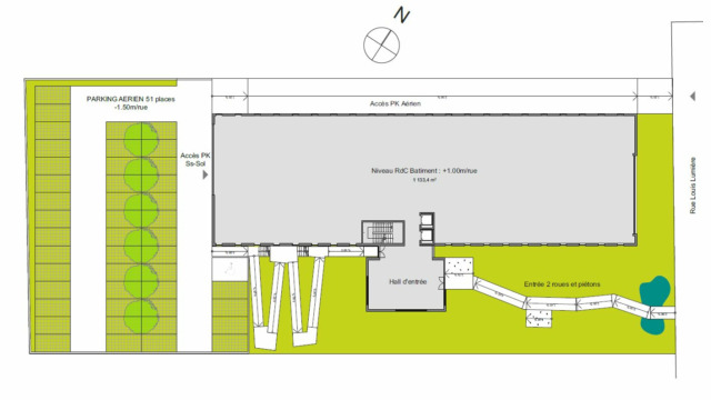
DESCRIPTION DU PROJET BUREAUX PERIGNY : L’idée du projet est de proposer un immeuble de bureaux dont l’expression architecturale digresse par rapport aux codes de l’architecture tertiaire de la ZA. L’utilisation de matériaux naturels et recyclables (bois, zinc, enduit à la chaux), la réduction de l’impact visuel du parking et la valorisation des abords paysagers et des modes de déplacements doux apportent au projet des réponses aux enjeux environnementaux qui concernant le développement des zones d’activités.
OBJET : Construction d’un immeuble de bureaux Périgny
MAÎTRE D’OUVRAGE : LINKCITY Bordeaux
LIEU : Périgny
SURFACE : 3 150 m²
BUDGET : 3 307 000 € HT
MAÎTRE D’ŒUVRE : Agence Lionel Coutier
MISSION : Complète
DATE DE RÉALISATION : PRO en cours




