
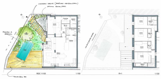
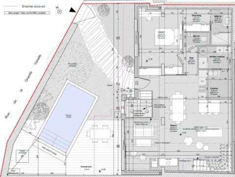
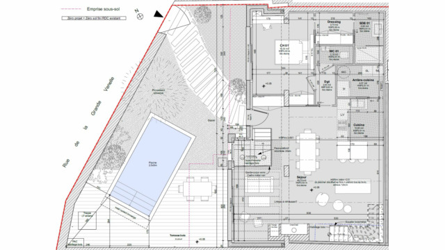
DESCRIPTION DU PROJET LA FLOTTE 4 : Le projet consiste en la construction d’une maison en R+1 d’environ 220 m² de surface habitable (275 m² utiles) pour accueillir la famille.
Il est basé sur un esprit Ile de Ré avec des teintes claires et neutres (blanc, avec des touches de noir, bleu ou de couleurs). Le souhait du MO est de favoriser la luminosité et la transparence grâce à de grandes baies vitrées aux vues de bénéficier des apports de lumière naturelle et de favoriser les liaisons avec le jardin.
L’organisation porte sur de grands volumes simples, avec de grandes hauteurs et des variations de plafonds.
Pour les aménagements intérieurs, les matériaux chaleureux et nobles comme la pierre et le bois sont privilégiés.
Une piscine est conçue dans le cadre du projet.
PROGRAMME LA FLOTTE 4 :
- RdC
- Entrée
- WC
- Cuisine ouverte sur l’espace de vie extérieur
- Lingerie
- Pièce de vie / salle à manger/salon
- Espace parentale
- Bureau
- Local technique
- Garage
- Local piscine
- Salle de jeux
- Abri vélo / séchoir
- R+1
- Mezzanine
- 3 chambres dont 1 suite avec salle de bains
- Salle de bain
- WC
- Circulations
OBJET : Construction d’une maison d’habitation
MAÎTRE D’OUVRAGE : Privé
LIEU : 17630 La Flotte en Ré
SURFACE UTILE : 275 m²
BUDGET : 490 000 € HT soit 588 000 € TTC
ARCHITECTE : RE TEAM DESIGN
MISSION : Complète avec gestion des BET Fluides et structures (sismique et RT 2012)
DATE DE RÉALISATION : Etudes en cours























