
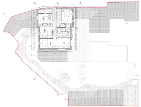
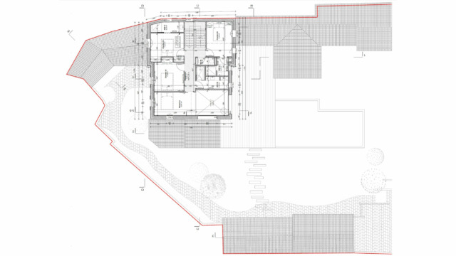
DESCRIPTION DU PROJET LA FLOTTE 3 : Le projet se situe à La Flotte en Ré. Le projet consiste à construire une maison qui dialogue avec l’architecture rhétaise et la nature environnante.
La maison se compose d’un volume sur rue en R+1 et de plusieurs volumes successifs en RDC qui organisent différents espaces extérieurs.
Cela permet de profiter pleinement de la lumière et de vues multiples.
PROGRAMME :
- Garage
- Auvent
- 3 patios
- Entrée
- Cuisine
- Séjour / salle à manger
- Chambre parent/dressing/SDB
- 4 chambres dont 3 avec Sd’E
- Dortoir
- Buanderie
- 2 Salles de Bains
- 3 WC
- Local technique
- Piscine
OBJET : construction d’une maison individuelle
MAÎTRE D’OUVRAGE : Privé
LIEU : 17410 La Flotte en Ré
SURFACE PLANCHER : 224 m² habitation
BUDGET : 416 600 €HT – 500 000 €TTC
ARCHITECTE : Agence RéTeam Design Architecte
MISSION : Conception et Réalisation
DATE DE RÉALISATION : 2015















