
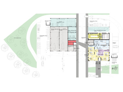
DESCRIPTION DU PROJET CONCOURS CENTRE NAUTIQUE MARANS : Le projet d’implantation d’un centre nautique au cœur de Marans à vocation à redynamiser le bourg en créant une nouvelle centralité. Il s’établit comme une interface entre le centre bourg et la future activité de loisir et détente qui est à développer sur l’île. Constituant l’amorce de ce nouvel aménagement, la notion d’espace public est développée comme le thème central de ce projet au travers d’une grande place publique et d’une promenade architecturale. La première appuie la centralité grâce aux multiples fonctions qui peuvent temporairement s’y développer. La promenade quant à elle, dessert le restaurant panoramique en proposant une découverte ludique du patrimoine architectural, paysager et fluvial de Marans grâce à une déambulation en hauteur du bourg.
OBJET : Concours centre nautique Marans
MAÎTRE D’OUVRAGE : Commune de Marans
LIEU : Marans
SURFACE : 1 500 m²
BUDGET : 2 332 000 € HT
MAÎTRE D’ŒUVRE : Agence Lionel Coutier
MISSION : Complète + EXE + OPC
DATE DE RÉALISATION : 2017 classé 2nd











