
DESCRIPTION DU PROJET MAISON ARS 01 :
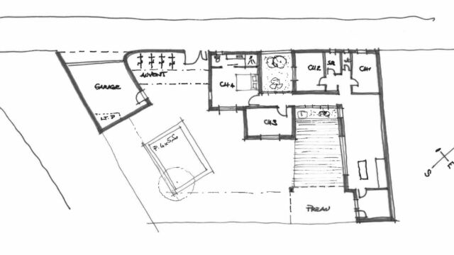
Une maison de vacances est réhabilitée et agrandie pour s’adapter aux besoins de la famille. La maison existante est construite en limite Nord et s’ouvre au Sud vers un large jardin. Dans cette maison existante, les espaces sont décloisonnées et les ouvertures modifiées. Les pièces de vies prennent alors des proportions plus généreuses et s’ouvrent plus largement vers le jardin. A l’Ouest de la parcelle une suite parentale est construite en extension de la maison existante tandis qu’à l’Est, c’est la construction d’un large préau repas qui s’implante en relation directe avec la cuisine. A l’extérieur, différentes terrasses permettent l’articulation entre la maison, le préau, le jardin et la piscine qui prend place au centre du terrain. Enfin, un garage est construit au Sud de la parcelle, en limite sur rue.
PROGRAMME : Garage, préau repas, pièce de vie, cellier, préau d’entrée, suite parentale, 2 chambres enfants.
OBJET : Rénovation et extension d’une maison individuelle
MAITRE D’OUVRAGE : privé
LIEU : 17590 Ars
BUDGET : NC
ARCHITECTE : Agence Ré Team Design
MISSION : Complète
DATE DE REALISATION : Etudes en cours












