
DESCRIPTION DU PROJET MAISON LA ROCHELLE 25 :
Implantée dans un environnement très boisé, cette maison se développe de plain-pied dans des volumes aux traitements variés. Noirs bardés en bois brulé avec une toiture monopente en métal, le volume semble s’effacer sur le fond végétal. Lorsque le volume est blanc, il a un volume simple plus urbain avec sa toiture terrasse. L’écriture de cette maison mixte l’architecture des cabines australiennes tout en s’inscrivant dans une esthétique contemporaine.
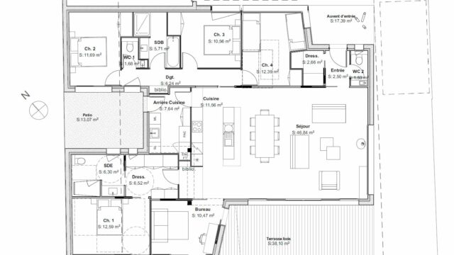
PROGRAMME : Garage, entrée, pièce de vie, arrière-cuisine, suite parentale accessible aux personnes à mobilité réduite, bureau, 3 chambres enfants.
OBJET: Construction d’une maison d’habitation
MAITRE D’OUVRAGE : privé
LIEU : 17000 La Rochelle
BUDGET : NC
ARCHITECTE: Agence Lionel coutier Architecte
MISSION: Complète
DATE DE RÉALISATION : Etudes en cours








