
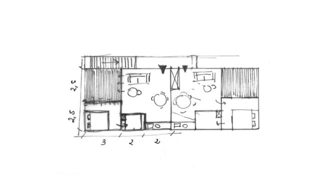
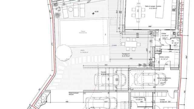
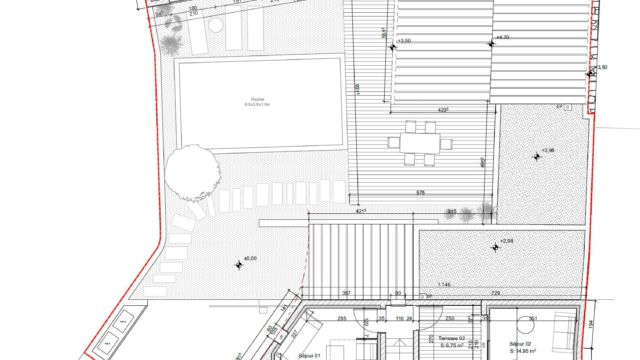
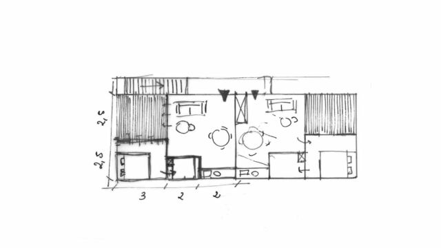
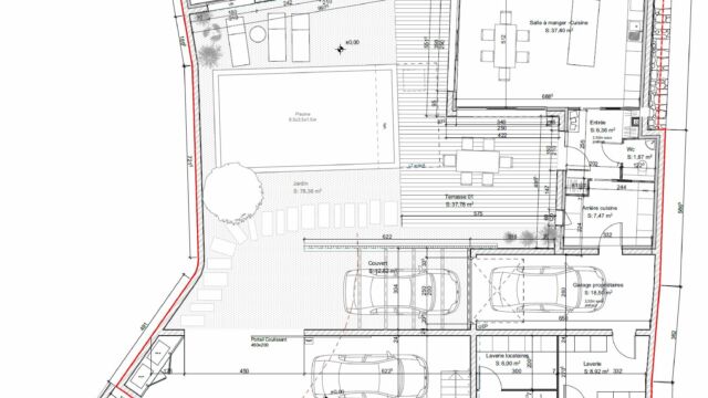
DESCRIPTION DU PROJET MAISON DE LA ROCHELLE 26 : Ce projet combine la création d’une maison individuelle ainsi que de deux logements locatifs. L’enjeu est donc ici de faire cohabiter trois logements qui soient agréables et lumineux au sein d’un même terrain tout en préservant l’intimité de chacun. Les deux logements locatifs sont donc implantés dès l’accès à la parcelle, sur les limites Sud et Est, dans une volonté d’obtenir une entrée indépendante sans interférer avec l’espace privatif des propriétaires. La maison quant à elle s’implante sur les limites Nord et Ouest du terrain dans le but de libérer un jardin à l’Ouest qui accueille la grande terrasse et la piscine et vers lequel la majorité des pièces sont orientées. Un patio est également créé au Nord-Est de la parcelle. Le salon, la salle à manger et la cuisine s’articulent autour et profitent grâce à sa présence d’ensoleillement tout au long de la journée. Enfin, l’alliance des façades blanches à un bardage bois et au zinc viennent donner une esthétique résolument contemporaine à l’ensemble.
PROGRAMME : Garage, arrière-cuisine, entrée, cuisine-salle à manger, séjour, suite parentale, laverie, 3 chambres enfants, local vélos.
1 studio et un T2 pour location avec laverie commune et local vélos.
OBJET : Construction d’une maison d’habitation
MAITRE D’OUVRAGE : privé
LIEU : 17000 La Rochelle
BUDGET : NC
ARCHITECTE : Agence Lionel coutier Architecte
MISSION : Complète




















