
DESCRIPTION DU PROJET MAISON LE BOIS PLAGE 14 :
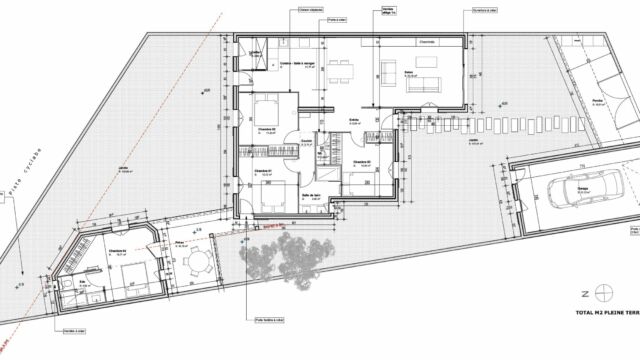
Une maison individuelle et ses annexes sont réhabilitées pour répondre aux enjeux réglementaires et retrouver une esthétique rétaise tout en adaptant les espaces aux usages des nouveaux propriétaires. Les ouvertures sont donc modifiées et l’organisation intérieure adaptée aux nouveaux besoins. La construction d’un préau permet la liaison de la maison principale à l’annexe dédiée aux invités ainsi que la création d’une petite terrasse extérieure couverte. Au sud, c’est la construction d’un préau d’entrée qui génère une façade sur rue et permet de donner un peu d’intimité au jardin de la maison.
PROGRAMME : Garage, porche d’entrée, entrée, cellier, cuisine, salon-salle à manger, 3 chambres, une suite annexe, un préau de repas.
OBJET : Rénovation et extension d’une maison individuelle
MAITRE D’OUVRAGE : privé
LIEU : 17580 Le Bois Plage
BUDGET : NC
ARCHITECTE : Agence Ré Team Design
MISSION: Complète
DATE DE REALISATION : Etudes en cours












