
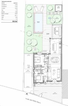
DESCRIPTION DU PROJET MAISON LE BOIS-PLAGE 8 : La maison actuellement sur sous-sol ne permet pas l’accès direct au jardin. L’idée du projet naît du souhait de réaliser un véritable espace extérieur à vivre.
La maison est entièrement rénovée afin de tourner les pièces de vies vers le jardin, l’extension permet de créer une cuisine, prolongée d’un préau pour accueillir une terrasse couverte. Après cela, le jardin est agrémenté d’une piscine. Ensuite, la rampe d’accès au sous-sol ne trouvant plus son utilité sera supprimer afin de retrouver le niveau de la rue jusqu’au fond du jardin. Donc le projet se veut contemporain et rétais.
PROGRAMME : Entrée, 2 chambres avec salle de bain, WC, séjour, salle à manger et cuisine. Un abri de jardin, un préau et une piscine.
OBJET : Construction d’une maison individuelle
MAÎTRE D’OUVRAGE : Privé
LIEU : 17580 Le Bois Plage en Ré
BUDGET : NC
ARCHITECTE : Agence Ré Team Design Architecte
MISSION : Conception et Réalisation
DATE DE RÉALISATION DE LA MAISON LE BOIS-PLAGE 8 : en cours d’étude





