
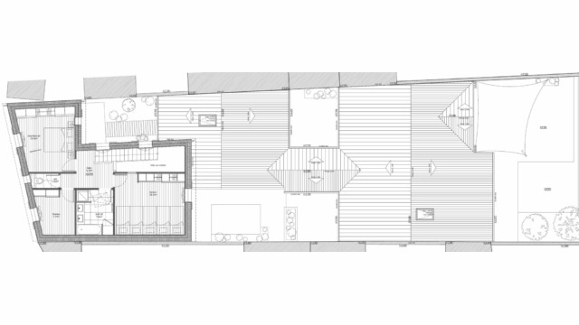
DESCRIPTION DU PROJET LA FLOTTE 1 : La maison se déplie au travers d’une parcelle étroite avec un étage côté rue. Des patios jalonnent le parcours dans cette maison et créent des espaces de jardin ou de terrasses accessibles aussi bien par les espaces de vie que par les chambres. Toute la maison est ainsi bien ensoleillée et les espaces de vie s’ouvrent largement sur un jardin tout en profondeur. La maison et le jardin suivent la pente naturelle du terrain. Une piscine en L s’implante au centre du jardin pour offrir un espace de détente visible depuis la chambre principale et le séjour.
PROGRAMME : Porche d’entrée, Garage, Buanderie, entrée, 2 WC, suite avec salle d’eau, suite avec salle de bain, salon, salle à manger, cuisine, suite parentale avec dressing et salle d’eau, pool-house, 2 chambres enfants, une salle de bain commune, un bureau, piscine.
OBJET : Construction d’une maison individuelle
MAÎTRE D’OUVRAGE : Privé
LIEU : 17630 La Flotte en Ré
BUDGET : NC
ARCHITECTE : RE TEAM DESIGN
MISSION : Conception et Réalisation
DATE DE RÉALISATION : Travaux en cours
















