
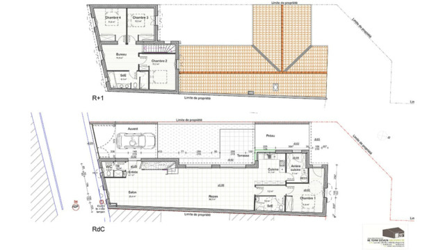
DESCRIPTION DU PROJET LE BOIS PLAGE 5 : Le projet se situe au Bois Plage en Ré. Le projet consiste en la construction d’une maison individuelle.
PROGRAMME :
- Auvent / stationnement
- Entrée
- Dégagement / rangement / WC
- Séjour
- Salle à manger
- Cuisine
- Arrière cuisine
- Préau
- Chambre parent/dressing/salle d’eau
- 3 chambres
- Salle d’eau
OBJET : construction d’une maison individuelle
MAÎTRE D’OUVRAGE : Privé
LIEU : 17280 Le Bois Plage en Ré
SURFACE PLANCHER : 173 m²
BUDGET : NC
ARCHITECTE : Agence Ré Team Design Architecte
MISSION : Permis de Construire
DATE DE RÉALISATION : NC
DATE DE RÉALISATION : 2015






