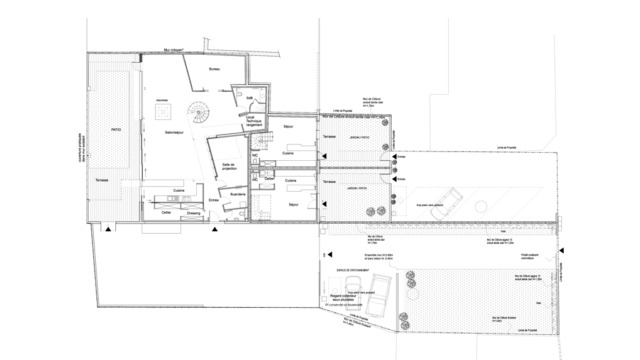
DESCRIPTION DU PROJET LOFT LA ROCHELLE 5 : Le volume important de ce hangar à structure acier traditionnelle a permis l’aménagement de deux appartements de respectivement 60 et 57 m² agrémentés de jardins et d’un loft de 270 m² profitant d’un patio de 90 m². Le parti-pris architectural du projet est de conserver l’aspect originel du hangar en tôle ondulée et de donner aux façades et aux aménagement intérieurs un dessin contemporain.
Le séjour à double hauteur créé est totalement ouvert sur le patio /jardin ou sera réalisée la piscine.
Afin de profiter pleinement des volumes et des vues en offrant aux usagers une véritable promenade intérieure, les circulations sont organisées par des coursives.
Enfin, le projet associe une réflexion environnementale dans la gestion du confort thermique et énergétique par l’usage de la géothermie (chauffage et rafraîchissement des espaces de vie, eau chaude sanitaire et de la piscine).
Le programme fonctionnel comporte :
- Buanderie
- Dressing
- Cellier
- Cuisine
- Salle de projection
- Salon / séjour
- Local technique
- SDB
- 2 bureaux
- Passerelle
- Chambre enfant
- SDB
- Chambre parents
- Dressing
- Terrasse
- Jardin
- Patio
OBJET : aménagement d’un loft et 2 appartements
LIEU : 17000 La Rochelle
SURFACE HABITABLE : 387.70m²
SURFACES ANNEXES : 180.70m²
BUDGET : 455 000€HT – 480 000€TTC
DATE DE RÉALISATION LOFT LA ROCHELLE 5 : 2009




