
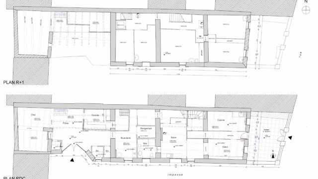
DESCRIPTION DU PROJET MAISON STE MARIE 05 : Ce projet transforme une vieille maison du centre de Sainte-Marie ainsi que son chai en une maison de vacances alliant l’esprit traditionnel des maisons l’île de ré au caractère plus agricole voir industriel des chais et séchoirs. Le terrain tout en longueur possède une belle façade sur rue, deux petites cours ainsi qu’une longue façade donnant sur une petite impasse. L’intérieur de la maison d’habitation est entièrement repensé pour s’adapter aux usages définis par le propriétaire tandis que le chai présent en fond de parcelle (qui était simplement couvert) est refermé pour devenir une réelle extension de la maison. Sa façade principale donne sur une cour privée en cœur de parcelle et se transforme alors en une grande verrière agrémentée de panneaux bois mobiles reprenant l’esprit d’un séchoir et le caractère animé de la façade préexistante. A l’intérieur les espaces sont tous redéfinis et l’ensemble est refait à neuf dans un style contemporain et rétais laissant toutefois transparaitre le caractère de l’ancien (murs en pierre, poutre bois apparentes etc).
PROGRAMME : Entrée, salon, cuisine, salle à manger, arrière-cuisine, 7 suites, palier-bureau.
OBJET : Rénovation et extension d’une maison individuelle
MAITRE D’OUVRAGE : privé
LIEU : 17740 Ste Marie de Ré
BUDGET : NC
ARCHITECTE : Agence Ré Team Design
MISSION : Complète
DATE DE REALISATION : Etudes en cours





